01

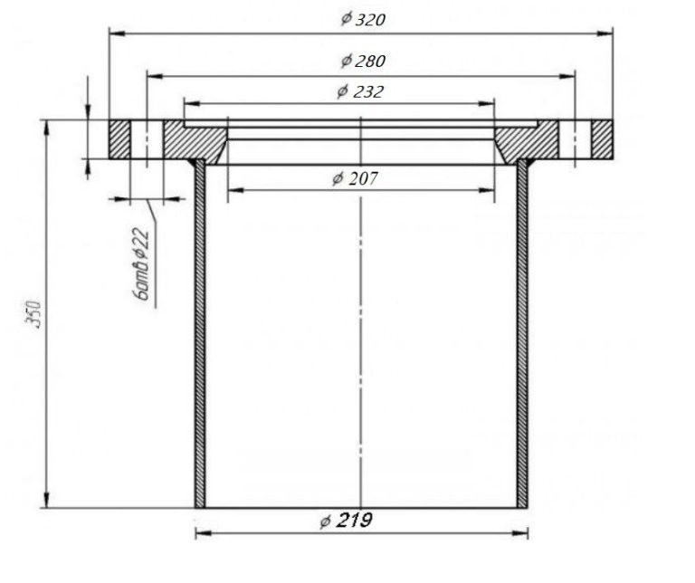
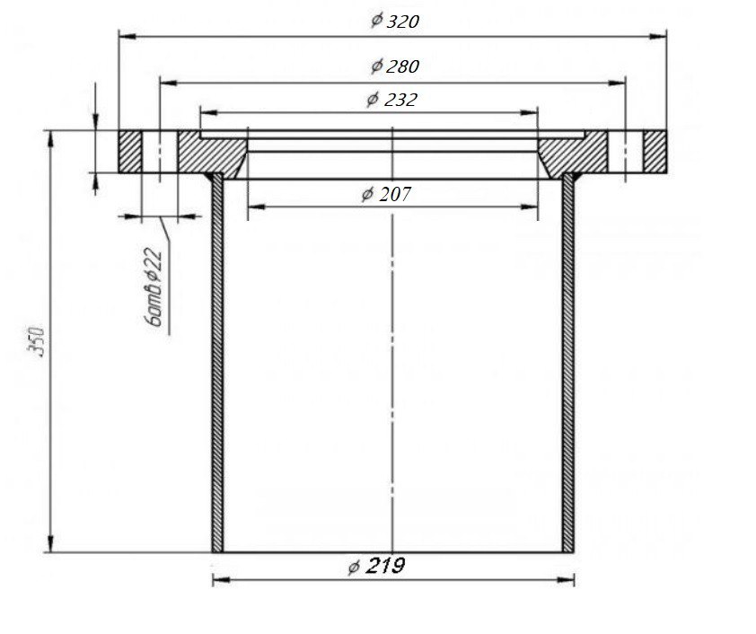
Пожарная подставка ППС-200 сварная без дна

Пожарная подставка ППС-200 сварная без дна

Артикул:0221

Вваривается в водопроводную трубу и присоединяет пожарный гидрант к водопроводу. Входит в состав пожарного оборудования, необходимого для тушения пожаров.

Цена за ед.

2655

Цвет:

Кол-во

 шт.

Описание

Связаться с нами

Отгрузка

Условия оплаты

02

Похожие товары